




+1Zobacz wszystkie
6 zdjęć
Bezpośrednio lokal usługowy w doskonałej lokalizacji
Żaryna, Warszawa, Mokotów
Powierzchnia
179 m²Pokoje
-Piętro
-Typ oferty
SprzedażO nieruchomości
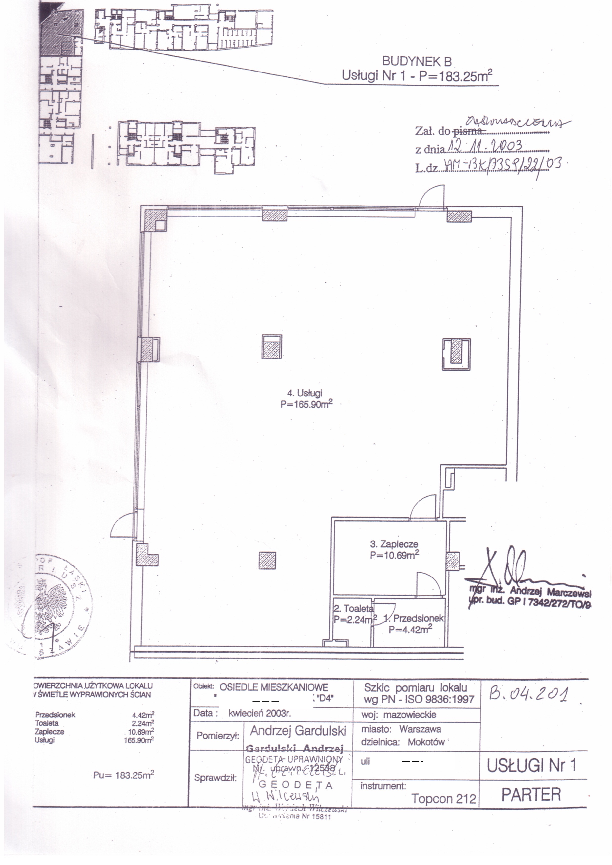
Na sprzedaż lokal użytkowy o powierzchni 179 m2 z działającym sklepem spożywczym. Cena 3 600 000 zł* Lokal położony jest w samym sercu Mokotowa, w pobliżu Pola Mokotowskiego, w środku dużych osiedli mieszkaniowych i w sąsiedztwie biurowca. Usytuowany jest na parterze wielokondygnacyjnego budynku mieszkalnego. Ma świetnie wyeksponowane narożne witryny oraz 2 niezależne wejścia - od frontu i od zaplecza. Do lokalu należy miejsce parkingowe tuż przy wejściu od zaplecza. Istnieje możliwość wynajęcia dodatkowych miejsc parkingowych. Przejęcie sklepu nie jest warunkiem sprzedaży lokalu, choć byłoby mile widziane. Miejsce ma też potencjał na drogerię z dużym działem chemii niemieckiej. *Podana cena zakupu jest ceną netto. Należy do niej doliczyć 23% VAT.
Szczegóły oferty
Cena za m²
20 112 zł / m²Numer oferty
#1433Lokalizacja
Ładowanie mapy...
Dokładna lokalizacja jest przybliżona. Skontaktuj się z ogłoszeniodawcą aby poznać szczegóły.
Historia i statystyki
Wyświetlenia
2osób widziało to ogłoszenie Zapisania
0osób dodało do ulubionychWartość oferty
Na sprzedaż3 600 000 zł
Cena za metr ²
20 112 zł / m²
Bezpieczna transakcja
Oferta zweryfikowana. Pamiętaj, aby nie przesyłać pieniędzy przed obejrzeniem nieruchomości.
Podobne oferty
Powiązane oferty z tej samej kategorii, które mogą Cię zainteresować
Wawer-Gocław nowoczesne biuro 220m2 do aranżacji
Warszawa, Mazowieckie
220 m²
Powierzchnia
Cena całkowita
13 200 zł
Cena za m²
60 zł / m²
Nowoczesna przestrzeń coworkowa w Warszawie!
WARSZAWA, Nieznane
1040 m²
Powierzchnia
Cena całkowita
2500 zł
Cena za m²
2 zł / m²
Na sprzedaż lokal użytkowy 40 m² centrum Warszawy
Warszawa, Mazowieckie
40 m²
Powierzchnia
Cena całkowita
280 000 zł
Cena za m²
7000 zł / m²
Lokal biurowy Łucka 15 do wynajęcia w dobrej lokalizacji obok Ronda Daszyńskiego
Warszawa, Mazowieckie
80 m²
Powierzchnia
Cena całkowita
6900 zł
Cena za m²
86 zł / m²
Cena
3 600 000 zł
















