




+9Zobacz wszystkie
14 zdjęć
Mieszkanie 4-pokojowe Warszawa Bródno, Wybrańska
Wybrańska, Warszawa, Mazowieckie
Powierzchnia
634 m²Pokoje
5Piętro
6Typ oferty
SprzedażO nieruchomości
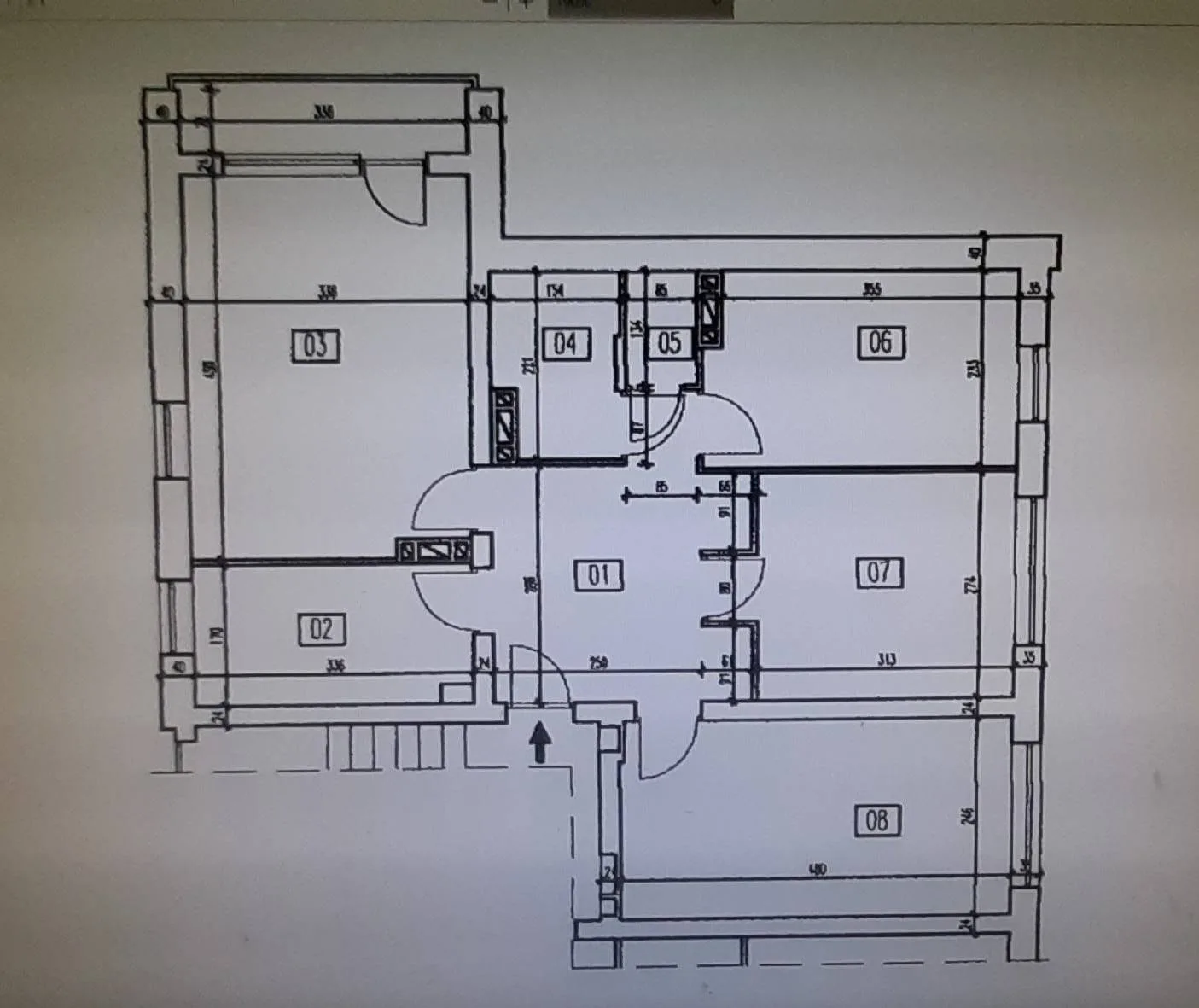
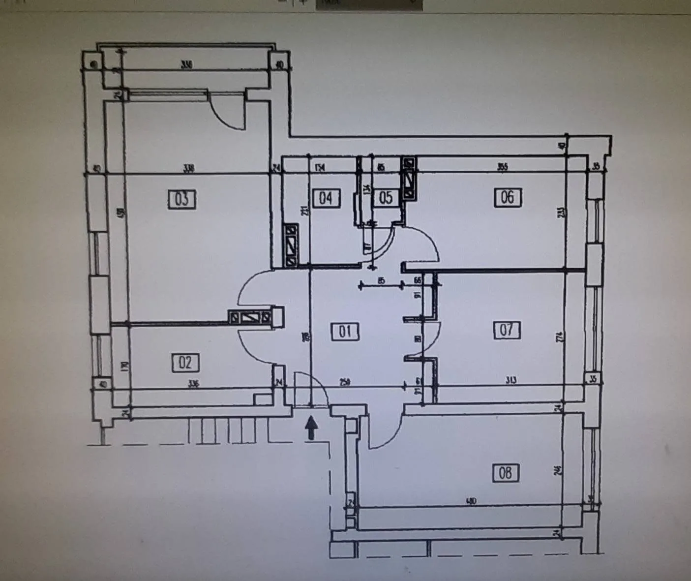
Mieszkanie spółdzielcze własnościowe o pow. 63,4 m kw, z loggią 65 m kw. Wielka płyta, rok zasiedlenia 1973. Ostatnie, czwarte piętro, bez windy, mieszkanie szczytowe z oknami na 3 strony (wschód, południe, północ), bardzo jasne. Cztery pokoje, widna kuchnia, łazienka i WC osobno, duży przedpokój. Wymienione okna, stolarka drewniana firmy Berlux, wymienione grzejniki, rury CO oraz ciepłej i zimnej wody z tworzywa. Mieszkanie do remontu, stwarza możliwości aranżacyjne np. poprzez otwarcie kuchni na pokój. Przynależy do niego pomieszczenie w piwnicy, jest też wspólne pomieszczenie na rowery. Blok położony atrakcyjnie wśród bujnej zieleni, oddalony od ulic, sąsiednie budynki w pewnym oddaleniu. W bliskim sąsiedztwie zlokalizowane są 2 szkoły podstawowe, przedszkole, sklepy, apteka, poczta, nieco dalej Park Bródnowski. Doskonałe połączenia komunikacyjne: autobusy, tramwaje, metro. Czynsz do administracji łącznie z zaliczką CO i wody wynosi 843 zł. Tylko bezpośrednio. Agencjom dziękujemy.
Szczegóły oferty
Cena za m²
1002 zł / m²Numer oferty
#910Winda
NieForma własności
uzytkowanie wieczysteLokalizacja
Ładowanie mapy...
Dokładna lokalizacja jest przybliżona. Skontaktuj się z ogłoszeniodawcą aby poznać szczegóły.
Historia i statystyki
Wyświetlenia
1osób widziało to ogłoszenie Zapisania
0osób dodało do ulubionychWartość oferty
Na sprzedaż635 000 zł
Cena za metr 2
1002 zł / m2
Bezpieczna transakcja
Oferta zweryfikowana. Pamiętaj, aby nie przesyłać pieniędzy przed obejrzeniem nieruchomości.
Podobne oferty
Powiązane oferty z tej samej kategorii, które mogą Cię zainteresować
2 pokoje w centrum Warszawy
Warszawa, Mazowieckie
38 m²
Powierzchnia
Cena całkowita
750 000 zł
Cena za m²
19 737 zł / m²
Mieszkanie ciche do zamieszkania BEZPOŚREDNIO
Warszawa, Nieznane
49 m²
Powierzchnia
Cena całkowita
860 000 zł
Cena za m²
17 551 zł / m²
Mieszkania 43m2 pokój z kuchnią i garaż Warszawa Abrahama
Warszawa, Mazowieckie
43 m²
Powierzchnia
Cena całkowita
2400 zł
Cena za m²
56 zł / m²
2800 zł, 2 oddzielne pokoje, 48m, Praga południe, od zaraz, bez prowizji
Warszawa, Mazowieckie
48 m²
Powierzchnia
Cena całkowita
2800 zł
Cena za m²
58 zł / m²
635 000 zł
1002 zł / m²
634 m²
5 pokoi























