




+2Zobacz wszystkie
7 zdjęć
M4 3 pokoje w Żorach
oś Księcia Władysłąwa 8, Żory, Żory
Powierzchnia
56 m²Pokoje
3Piętro
5Rynek
wtornyO nieruchomości
tel. 575 725 477
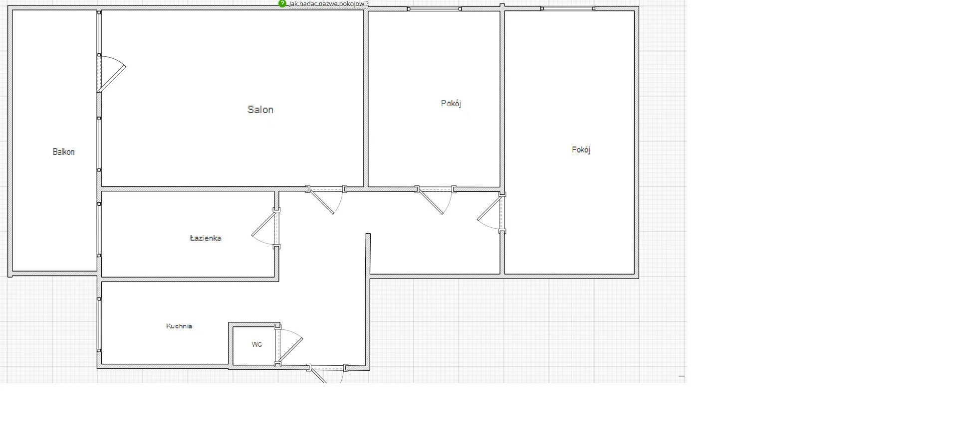
Sprzedam mieszkanie o powierzchni 55,7 m2 na osiedlu Księcia Władysława 8 w Żorach. Mieszkanie znajduje się na 5 piętrze w 10 piętrowym bloku z windą po termomodernizacji.
Mieszkanie jest do zamieszkania/remontu.
W mieszkaniu na podłogach jest parkiet, ściany gładzie / tapeta, okna balkonowe są plastikowe, okna w pokojach są drewniane. Składa się z trzech jasnych pokoi, oddzielnej kuchni, łazienki oraz przedpokoju. Ogrzewanie miejskie, ciepła woda z junkersa.
Lokalizacja mieszkania jest bardzo dogodna. W bliskim sąsiedztwie znajdują się sklepy, restauracje, szkoły, przedszkola, apteki oraz inne punkty usługowe. Dobrze rozwinięta infrastruktura komunikacyjna umożliwia szybkie i wygodne poruszanie się po mieście.
Mieszkanie posiada także balkon. Dodatkowo, do mieszkania przynależy piwnica, idealna do przechowywania rzeczy sezonowych.
Mieszkanie jest wynajmowane do końca marca ale można je zobaczyć. Zapraszam wszystkich zainteresowanych do kontaktu w celu umówienia się na prezentację mieszkania. Jest to doskonała okazja dla osób poszukujących własnego mieszkania w atrakcyjnej lokalizacji.
Nie przegap tej okazji! Skontaktuj się już dzisiaj i zostań właścicielem tego przytulnego mieszkania.
BEZ POŚREDNIKÓW. Osoby zainteresowane zapraszam do kontaktu telefonicznego w dowolnej porze do godziny 23.00.
Treść niniejszego ogłoszenia nie stanowi oferty handlowej w rozumieniu Kodeksu Cywilnego lecz ma charakter informacyjny.
Szczegóły oferty
Cena za m²
5161 zł / m²Numer oferty
#1680Rynek
WtórnyPiętro
5Liczba pięter w budynku
10Liczba pokoi
3Rok budowy
1980Rodzaj zabudowy
BlokMateriał budynku
Wielka płytaOkna
Plastikowe (PCV)Ogrzewanie
MiejskieWinda
TakStan wykończenia
Do remontuForma własności
Pełna własnośćUdogodnienia i budynek
Winda
Balkon
Piwnica
Lokalizacja
Ładowanie mapy...
Dokładna lokalizacja jest przybliżona. Skontaktuj się z ogłoszeniodawcą aby poznać szczegóły.
Historia i statystyki
Wyświetlenia
1osób widziało to ogłoszenie Zapisania
0osób dodało do ulubionychWartość oferty
Na sprzedaż289 000 zł
Cena za metr 2
5161 zł / m2
Bezpieczna transakcja
Oferta zweryfikowana. Pamiętaj, aby nie przesyłać pieniędzy przed obejrzeniem nieruchomości.
Podobne oferty
Powiązane oferty z tej samej kategorii, które mogą Cię zainteresować
Mieszkanie m3 Żory, os. Sikorskiego
Żory, śląskie
48 m²
Powierzchnia
Cena całkowita
360 000 zł
Cena za m²
7500 zł / m²
Wynajmę 1 pokojowe mieszkanie z opcją wynajmu garażu
Kraków, Małopolskie
32 m²
Powierzchnia
Cena całkowita
2200 zł
Cena za m²
69 zł / m²
Sprzedam mieszkanie
Tarnów, małopolskie
58 m²
Powierzchnia
Cena całkowita
350 000 zł
Cena za m²
6034 zł / m²
Przestronne 3-pokojowe mieszkanie z balkonem Legionowo centrum"
Legionowo, Mazowieckie
53 m²
Powierzchnia
Cena całkowita
720 000 zł
Cena za m²
13 585 zł / m²
289 000 zł
5161 zł / m²
56 m²











