




+5Zobacz wszystkie
10 zdjęć
SYNDYK sprzeda budynek przemysłowo-biurowy w Lidzbarku Warmińskim
Wysokiej Bramy, Lidzbark Warmiński, Warmińsko-mazurskie
Powierzchnia
177 m²Pokoje
-Piętro
-Typ oferty
SprzedażO nieruchomości
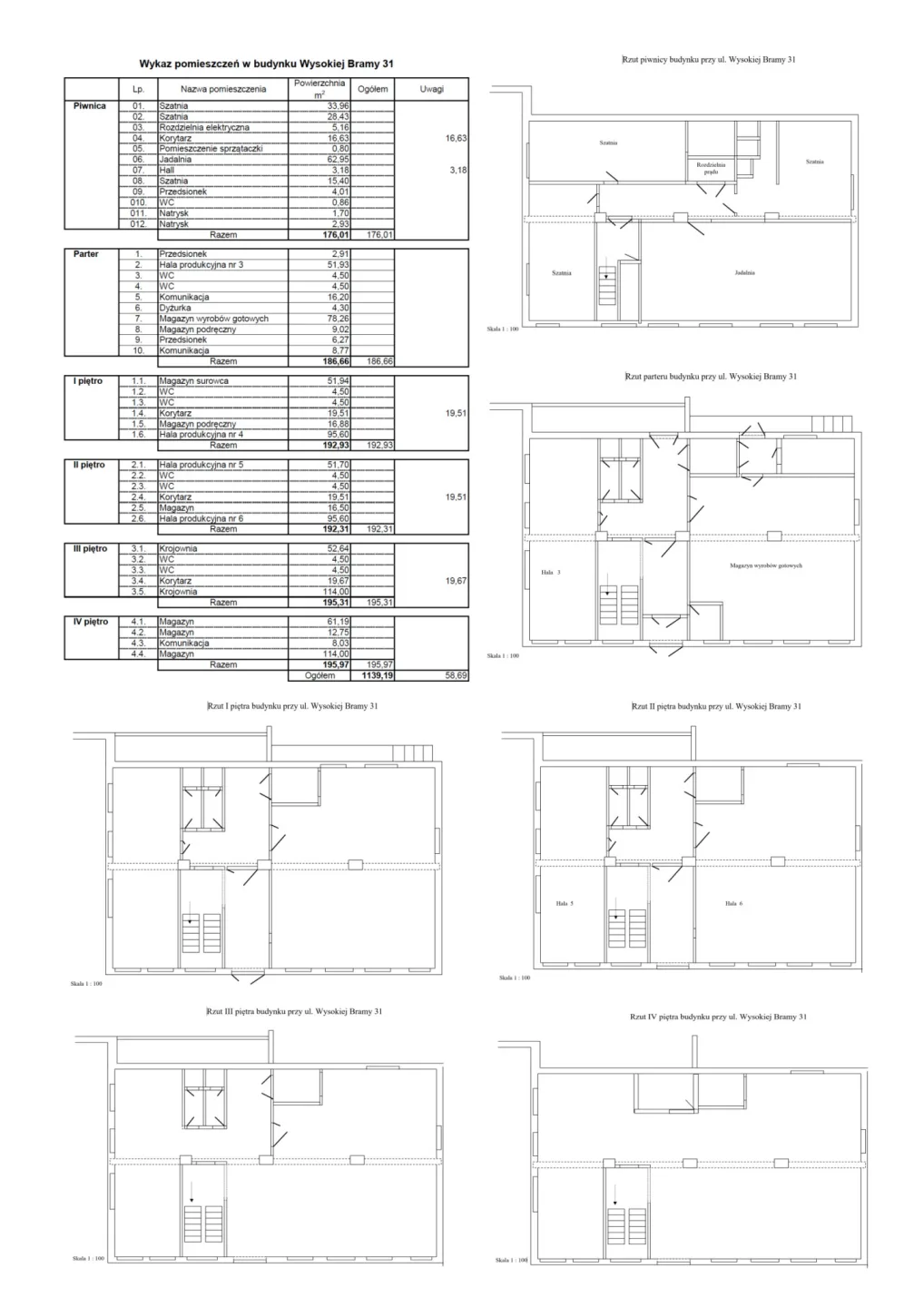
SYNDYK MASY UPADŁOŚCI WARMIŃSKA Sp. z o.o. sprzeda nieruchomość gruntową stanowiącą działkę nr 37/2 o pow. 0,1360 HA zabudowaną budynkiem przemysłowo-biurowym położoną w Lidzbarku Warmińskim przy ul. Wysokiej Bramy 31 dla której Sąd Rejonowy w Lidzbarku Warmińskim prowadzi księgę wieczystą KW nr OL1L/00015810/9 wraz z niezabudowaną działką nr 34/2 o pow. 0,0177 HA stanowiącą plac parkingowy przed budynkiem nr KW OL1L/00015809/9 - za cenę nie niższą niż 3/4 ich wartości oszacowania: 1.868.377,50 zł (wartość oszacowania: 2.491.170,00 zł). Sprzedaż prowadzona jest w formie konkursu ofert. Oferty pisemne, z podaniem proponowanej ceny należy składać w Kancelarii Notarialnej Zbigniewa Stankiewicza w Olsztynie przy ul. Dąbrowszczaków 18/4, tel. (89)527 32 30 - w terminie do dnia 8 sierpnia 2025r. Rozstrzygnięcie konkursu ofert nastąpi 13 sierpnia 2025r. o godz. 10.00. O wyniku oferenci zostaną powiadomieni listownie. Przystąpienie do konkursu oznacza zapoznanie się z regulaminem konkursu ofert i jego akceptacją. Syndyk zastrzega prawo swobodnego wyboru oferty a także unieważnienia konkursu bez podania przyczyn. Nieruchomość można oglądać po uprzednim uzgodnieniu terminu z p. Bożeną Mazurek tel. 600 472 178. Szczegółowe informacje oraz regulamin konkursu ofert jest dostępny w Internecie na stronie www.syndykolsztyn.com oraz www.syndykolsztyn.eu. Tel. do syndyka 502 957 530.
Szczegóły oferty
Cena za m²
10 556 zł / m²Numer oferty
#1352Lokalizacja
Ładowanie mapy...
Dokładna lokalizacja jest przybliżona. Skontaktuj się z ogłoszeniodawcą aby poznać szczegóły.
Historia i statystyki
Wyświetlenia
12osób widziało to ogłoszenie Zapisania
0osób dodało do ulubionychWartość oferty
Na sprzedaż1 868 377 zł
Cena za metr 2
10 556 zł / m2
Bezpieczna transakcja
Oferta zweryfikowana. Pamiętaj, aby nie przesyłać pieniędzy przed obejrzeniem nieruchomości.
Podobne oferty
Powiązane oferty z tej samej kategorii, które mogą Cię zainteresować
Wynajmę lokal usługowo - handlowy 383 m2, parter, centrum, Bartoszyce
Bartoszyce, Warmińsko-mazurskie
383 m²
Powierzchnia
Cena całkowita
9500 zł
Cena za m²
25 zł / m²
Lokal usługowy handlowy 13,5m2 Rzemieślnik
Białystok, Nieznane
13 m²
Powierzchnia
Cena całkowita
700 zł
Cena za m²
54 zł / m²
Lokale MIESZKALNO-USŁUGOWE , działka budowlana, ogród
Świebodzice, Dolnośląskie
500 m²
Powierzchnia
Cena całkowita
890 000 zł
Cena za m²
1780 zł / m²
1 868 377 zł
10 556 zł / m²
177 m²


















