




+8Zobacz wszystkie
13 zdjęć
Obiekt parterowy dobry pod lokal usługowy w Koszalinie ul. Reymonta
reymonta 15a, Koszalin, Zachodniopomorskie
Powierzchnia
691 m²Pokoje
-Piętro
-Typ oferty
SprzedażO nieruchomości
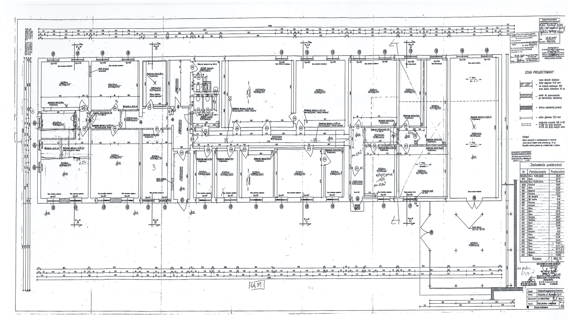
Na sprzedaż obiekt nadający się na administracyjno-biurowy lub usługowy przy ul. Reymonta 15a w Koszalinie! 27 pomieszczeń, 660 m², cena: 829 000 PLN! Pełne media, 3 niezależne wejścia. Działka 1343 m². Prezentacja po kontakcie z Pośrednikiem (792 763 241) ⤵Rozwinięcie opisu (wyświetl więcej) Obiekt znajduje się na działce nr 76/6 (prawo własności) o powierzchni 1343 m² i posiada dostęp do drogi publicznej - udział w prywatnej działce drogowej - 1/2 dz. nr 76/5 o powierzchni 0,0155 ha. Ten obiekt doskonale sprawdzi się jako gabinety lekarskie, gabinety odnowy biologicznej lub do prowadzenia działalności administracyjno-biurowej. Składa się z 27 pomieszczeń(tabelka z wypisem w galerii zdjęć), które mogą służyć jako układ sekretarsko-dyrektorski lub samodzielne pokoje, a także większe pomieszczenia, takie jak sala konferencyjna. Istnieją także sanitariaty. Ciepła woda dostępna jest dzięki podgrzewaczom elektrycznym, a ogrzewanie zapewnia sieć miejska. Okna PCV. Wszystkie media są dostępne, a w budynku znajdują się 3 niezależne wejścia. Istotną informacją jest to, że sprzedaż nie podlega opodatkowaniu VAT. Cena ofertowa: 9̶3̶9̶ ̶0̶0̶0̶ ̶ 829 000 PLN ! Link do mapy: https://www.google.com/maps/place/Reymonta+15,+75-900+Koszalin/@54.1871892,16.2047561,120a,35y,39.52t/data=!3m1!1e3!4m15!1m8!3m7!1s0x4701cd08ee Nie zwlekaj! Skontaktuj się już teraz, aby dowiedzieć się więcej o tym atrakcyjnym obiekcie! #NieruchomośćNaSprzedaż #Koszalin #BudynekBiuro #OfertaNieruchomości #LokalBiuro #GabinetyLekarskie #SalaKonferencyjna #DziałkaWłasnościowa #BezVAT #NieruchomośćKomercyjna #Inwestycja #KupTeraz #PowierzchniaBiurowa #NieruchomośćAdministracyjna #MiejscePracy
Szczegóły oferty
Cena za m²
1200 zł / m²Numer oferty
#853Lokalizacja
Ładowanie mapy...
Dokładna lokalizacja jest przybliżona. Skontaktuj się z ogłoszeniodawcą aby poznać szczegóły.
Historia i statystyki
Wyświetlenia
2osób widziało to ogłoszenie Zapisania
0osób dodało do ulubionychWartość oferty
Na sprzedaż829 000 zł
Cena za metr ²
1200 zł / m²
Bezpieczna transakcja
Oferta zweryfikowana. Pamiętaj, aby nie przesyłać pieniędzy przed obejrzeniem nieruchomości.
Podobne oferty
Powiązane oferty z tej samej kategorii, które mogą Cię zainteresować
NA WYNAJEM - Lokal sprzedażowo-handlowy na ul. Zwycięstwa ze zgodą na alkohol
Koszalin, Zachodniopomorskie
35 m²
Powierzchnia
Cena całkowita
2000 zł
Cena za m²
57 zł / m²
Lokal-Bar Comics Club w Koszalinie - Przejęcie Najmu za Odstępne
Koszalin, Zachodniopomorskie
235 m²
Powierzchnia
Cena całkowita
3000 zł
Cena za m²
13 zł / m²
Pawilon Handlowy przy ul. Śniadeckich
Koszalin, Zachodniopomorskie
164 m²
Powierzchnia
Cena całkowita
698 000 zł
Cena za m²
4256 zł / m²
kiosk ruchu na sprzedaz
Szczecin, Zachodniopomorskie
10 m²
Powierzchnia
Cena całkowita
10 000 zł
Cena za m²
1000 zł / m²
Cena
829 000 zł


















