




+9Zobacz wszystkie
14 zdjęć
Parterowy dom koło Pabianic, Fotowoltaika, Solary, Smart
Dobroń, łódzkie
Powierzchnia
214 m²Pokoje
5Liczba pięter
-Typ oferty
SprzedażO nieruchomości
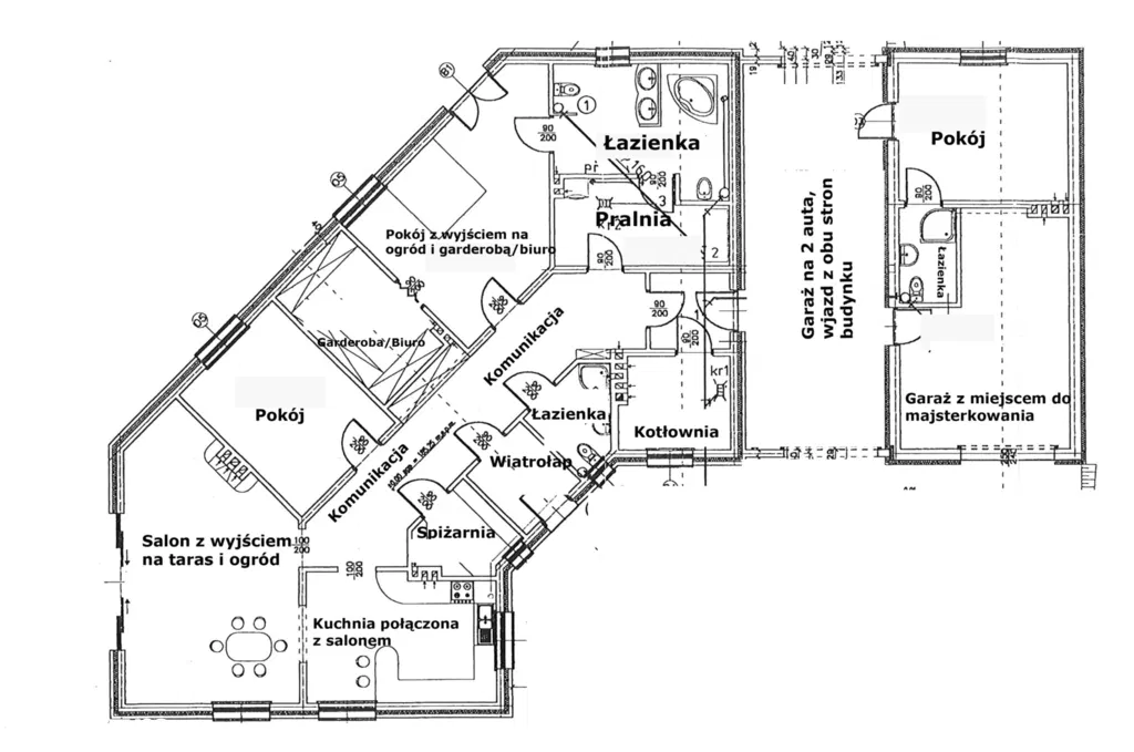
Komfortowy dom parterowy z dopracowanym ogrodem w Dobroniu. Przyjdź zaproponuj swoją cenę. To dom, który trzeba zobaczyć, by poczuć jego unikalny klimat. Jeśli szukasz miejsca, które zapewni Ci pełnię komfortu, bezpieczeństwo i codzienny relaks – ta nieruchomość spełni Twoje oczekiwania. Nowoczesność i funkcjonalność. W tej nieruchomości jest wiele UDOGODNIEŃ!!!!- koniecznie zapoznaj się z opisem, a sam się przekonasz. Dom parterowy o przemyślanym układzie, stworzony z myślą o wygodzie wszystkich mieszkańców, również osób z ograniczoną mobilnością. Nieruchomość została wyposażona w szereg udogodnień technicznych: podgrzewany podjazd, dach i rynny podgrzewana podłoga klimatyzacja zewnętrzne rolety antywłamaniowe system monitoringu i alarm instalacja fotowoltaiczna solar do podgrzewania wody własna studnia z systemem uzdatniania wody dodatkowo możliwość organizowania kina w ogrodzie, jest na to przygotowany specjalny ekran Dom składa się z: przestronnego salonu z klimatyzacją i wyjściem do ogrodu sypialni głównej z prywatną łazienką, garderobą i wyjściem na ogród dodatkowego pokoju widnej, oddzielnej kuchni do aranżacji dodatkowo znajdziesz oddzielny pokój połączony z łazienką -idealne miejsce na biuro, lub pokój nastolatka pralni i suszarni- duża przestrzeń biura w pełni wyposażonego w zabudowane meble kotłowni, piec wysokiej jakości przestronnego hallu i wiatrołapu Połączony z domem dwustanowiskowy garaż oraz pomieszczenie techniczne. Garaż pomieści spokojnie 3 auta, a dodatkowo znajdziesz też dużo miejsca do parkowania przed nieruchomością i za. Zjawiskowy ogród: Prawdziwa oaza spokoju podzielona na przemyślane strefy: strefa dla dzieci – bezpieczne miejsce do zabawy strefa z ogniskiem – idealna na wieczorne spotkania altana z grillem – miejsce spotkań i wspólnych posiłków przestrzeń wypoczynkowa przygotowana pod jacuzzi strefa techniczna z domkiem narzędziowym Ogród jest nie tylko estetyczny, ale i funkcjonalny. Zainstalowano system zraszaczy, siatkę przeciw kretom, elementy małej architektury oraz alejki z ozdobnymi nasadzeniami. Solidna konstrukcja i jakość wykonania Dom został oddany do użytku w 2009 roku. Zbudowany z pustaka ceramicznego z podwójnym murem, dach pokryty gontem bitumicznym. Ogrzewanie gazowe zapewnia ciepło(niski koszt utrzymania!) w każdych warunkach. Dom pozwala na swoją aranżację, według swojej wyobraźni.
Szczegóły oferty
Cena za m²
6402 zł / m²Numer oferty
#1599Powierzchnia działki (m²)
2190Garaż
w cenieLokalizacja
Ładowanie mapy...
Dokładna lokalizacja jest przybliżona. Skontaktuj się z ogłoszeniodawcą aby poznać szczegóły.
Historia i statystyki
Wyświetlenia
2osób widziało to ogłoszenie Zapisania
0osób dodało do ulubionychWartość oferty
Na sprzedaż1 370 000 zł
Cena za metr ²
6402 zł / m²
Bezpieczna transakcja
Oferta zweryfikowana. Pamiętaj, aby nie przesyłać pieniędzy przed obejrzeniem nieruchomości.
Podobne oferty
Powiązane oferty z tej samej kategorii, które mogą Cię zainteresować
Wynajem Domu Rawa Mazowiecka Kwatery pracownicze Noclegi Garaż Parking
Rawa Mazowiecka, łódzkie
199 m²
Powierzchnia
Cena całkowita
800 zł
Cena za m²
4 zł / m²
Kwatery pracownicze dla firm Wynajem Domu 200m 6 pokoi Garaż Parking
Rawa Mazowiecka, łódzkie
200 m²
Powierzchnia
Cena całkowita
8000 zł
Cena za m²
40 zł / m²
LUKSUSOWA POSIADŁOŚĆ obok Sieradza woj. łódzkie
Charłupia Mała, łódzkie
200 m²
Powierzchnia
Cena całkowita
1 260 000 zł
Cena za m²
6300 zł / m²
Duży dom w sadzie + działka 5500m
Zgierz, łódzkie
260 m²
Powierzchnia
Cena całkowita
1 400 000 zł
Cena za m²
5385 zł / m²
Cena
1 370 000 zł





























