




+6Zobacz wszystkie
11 zdjęć
Dom z działką – idealny dla inwestora – 1/2 udziałów!
Jana Kasprowicza, Zabrze, Zabrze
Powierzchnia
180 m²Pokoje
4Liczba pięter
-Rynek
wtornyO nieruchomości
Na sprzedaż 1/2 udziału w nieruchomości – domu w zabudowie bliźniaczej, zlokalizowanym w jednej z najbardziej pożądanych i spokojnych dzielnic Zabrza.
Oferta dotyczy sprzedaży udziału we współwłasności nieruchomości, co stwarza możliwości zarówno dla inwestora, jak i osoby poszukującej rozwiązania z potencjałem na przyszłość.
Jeśli szukasz miejsca dobrze zlokalizowanego – zapewniającego spokój, a jednocześnie szybki dostęp do centrum i głównych tras – ta oferta stanowi interesującą propozycję.
Lokalizacja: Zabrze, spokojna okolica – bez ścisku, bez hałasu, z szybkim dojazdem do centrum (2–3 minuty autem).
Wylotówki: ekspresowy dostęp do A1, A4, Katowic i Gliwic.
Infrastruktura: szkoła podstawowa w pobliżu, sklepy Biedronka, Lidl, Dino, Galeria Platan – wszystko w zasięgu kilku minut.
Informacje o nieruchomości:
Powierzchnia całkowita: 180 m²
Powierzchnia użytkowa: 128 m² (ale z odczuciem 150–160 m²!)
Działka: ok. 300 m²
Rok budowy: 2021
Ogrzewanie: gazowe, piec dwufunkcyjny kondensacyjny
Ogrzewanie podłogowe na parterze i piętrze
Stan: do wejścia, bez nakładów – lepiej niż w katalogu
Wnętrze, które urzeka i zaskakuje praktycznością:
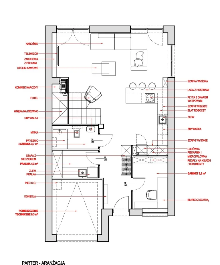
Parter:
Nowoczesna kuchnia w czarnym macie – absolutny hit designu, połączona z przestronnym salonem z kominkiem i trzema oknami tarasowymi – światło wlewa się z każdej strony.
Elegancki hol z siedziskiem i garderobą na odzież wierzchnią.
Pralnia i praktyczne pomieszczenie gospodarcze.
Osobna łazienka – z prysznicem typu walk-in, toaletą i umywalką. Styl glamour, bez kompromisów.
Piętro:
Ogromna łazienka – z wanną, dużym prysznicem typu walk-in i podwójną umywalką.
Sypialnia małżeńska z własną garderobą.
Przestronny pokój gościnny.
Pokój dziecięcy z widokiem na zieleń oraz oddzielną garderobą.
Dodatkowe poddasze – idealne jako schowek/strych z dużą przestrzenią do przechowywania.
Na zewnątrz:
Budynek gospodarczy o powierzchni ok. 9 m² – idealny na rowery, opony, narzędzia i sezonowe akcesoria.
Przestronny ogródek i super taras z jacuzzi leżakami oraz kompletem ogrodowym – idealny na popołudniową kawę lub grilla z przyjaciółmi.
Dlaczego ten dom?
Bo każdy metr kwadratowy został tu przemyślany i wykorzystany na 110%. Choć formalnie ma 128 m², jego funkcjonalność i rozkład sprawiają, że czujesz się jak w domu 150–160-metrowym. Nie wierzysz? Umów się na godzinę i przekonaj się sam.
Ten dom bije na głowę wiele większych metraży, które marnują przestrzeń na niepraktyczne pomieszczenia. Tu wszystko ma swoje miejsce – i sens.
WAŻNE: Sprzedaż bezpośrednia – pośrednikom dziękujemy.
Cena: okazyjna, liczona na poziomie 10–11 tys. zł/m² – co przy tej lokalizacji, standardzie wykończenia i stylu jest propozycją nie do pobicia.
Zadzwoń i umów się – to nie jest dom do oglądania przez ekran. To dom, którego się nie zapomina.
Szczegóły oferty
Cena za m²
3328 zł / m²Numer oferty
#1708Dostępne od
24 marca 2026Typ domu
BliźniakPowierzchnia działki (m²)
300Liczba pokoi
4Rok budowy
2021Rynek
WtórnyBezpieczeństwo
Drzwi antywłamaniowe
Monitoring
Teren zamknięty
Domofon / Wideofon
System alarmowy
Rolety antywłamaniowe
Wyposażenie wnętrz
Meble
Telewizor
Pralka
Lodówka
Zmywarka
Piekarnik
Kuchenka
Udogodnienia i budynek
Taras
Ogródek
Garaż / Miejsce parkingowe
Rzuty i Plany


Lokalizacja
Ładowanie mapy...
Dokładna lokalizacja jest przybliżona. Skontaktuj się z ogłoszeniodawcą aby poznać szczegóły.
Historia i statystyki
Wyświetlenia
0osób widziało to ogłoszenie Zapisania
0osób dodało do ulubionychWartość oferty
Na sprzedaż599 000 zł
Cena za metr 2
3328 zł / m2
Bezpieczna transakcja
Oferta zweryfikowana. Pamiętaj, aby nie przesyłać pieniędzy przed obejrzeniem nieruchomości.
Podobne oferty
Powiązane oferty z tej samej kategorii, które mogą Cię zainteresować
180 m²
Powierzchnia
4 pok.
Liczba pokoi
Cena całkowita
1 299 000 zł
Cena za m²
7217 zł / m²
Siedlisko, drzewa owocowe, żyzna gleba, pozwolenie na rozbudowę 3 budynków
Wójcin, Kujawsko-pomorskie
79 m²
Powierzchnia
Cena całkowita
158 000 zł
Cena za m²
2000 zł / m²
Sprzedam pół domu 130 m2 w miejscowości Myki, 5 km od Olsztyna
Myki, Warmińsko-mazurskie
130 m²
Powierzchnia
Cena całkowita
330 000 zł
Cena za m²
2538 zł / m²
Nałęczów działka budowlana o powierzchni 1088 m2
Nałęczów, Lubelskie
1088 m²
Powierzchnia
Cena całkowita
354 000 zł
Cena za m²
325 zł / m²
599 000 zł
3328 zł / m²
180 m²




















