




+8Zobacz wszystkie
13 zdjęć
Sprzedam mieszkanie Kielce, KSM
Sandomierska, Kielce, Kielce
Powierzchnia
47 m²Pokoje
3Piętro
9Rynek
wtornyO nieruchomości
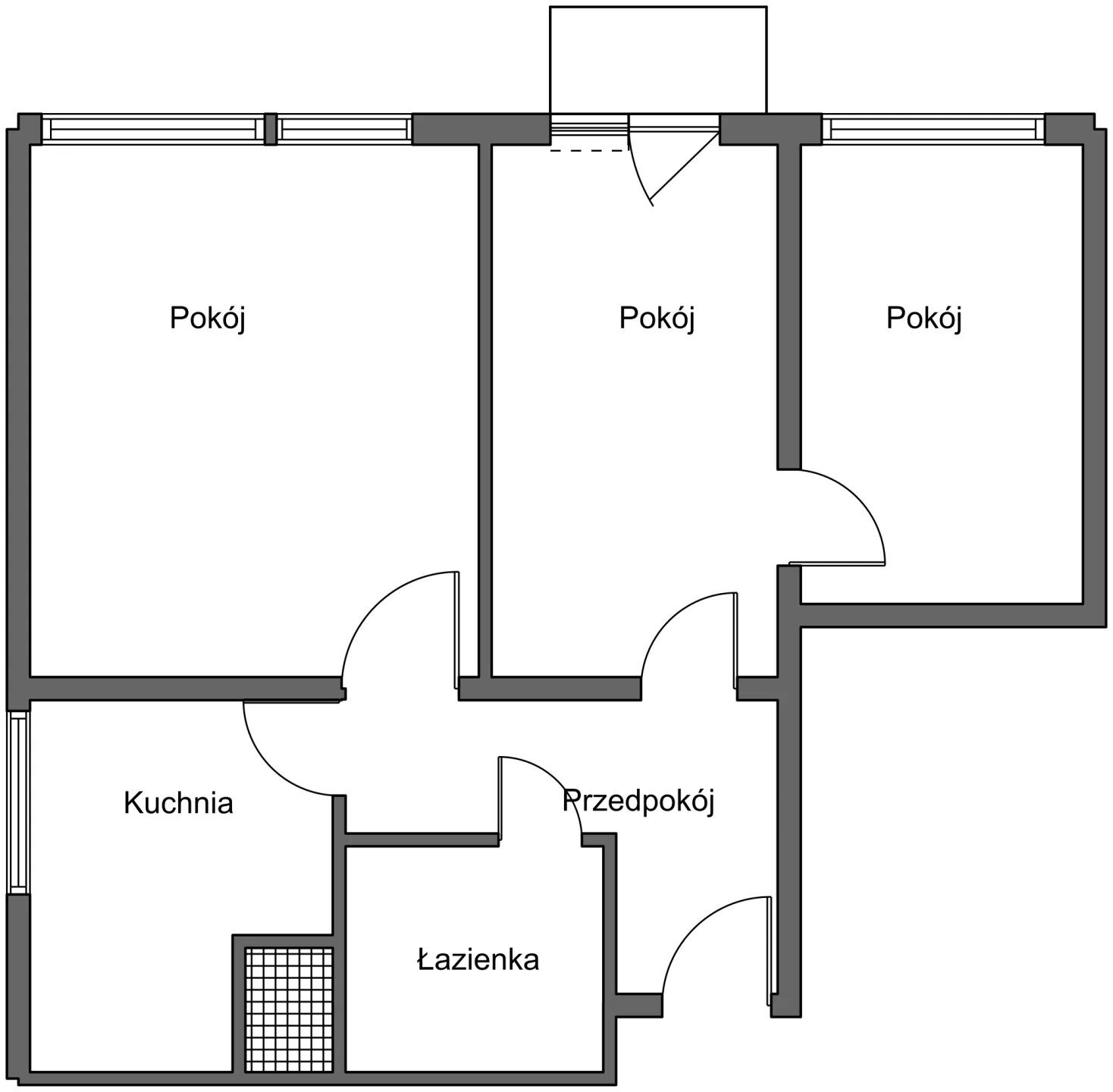
Sprzedam mieszkanie do remontu z możliwością zmiany aranżacji, jasne, widokowe. Widna, osobna kuchnia, balkon w środkowym pokoju, dwie windy. Ekspozycja wschodnio (pokoje) - północna (kuchnia). W dużym i ostatnim pokoju nowe okna plastikowe uchylno-otwierane, do wymiany okno w kuchni i balkonowe. Mieszkanie wraz z trzema innymi oddzielone od reszty klatki schodowej osobnymi drzwiami (9 mieszkań na piętrze). Bardzo dobra lokalizacja, w pobliżu sklepy, szkoły, przedszkole, żłobek, plac zabaw, uczelnie wyższe, galerie handlowe, opieka medyczna (dwie przychodnie, szpital), przystanki autobusowe. Do nieruchomości przypisany jest parking. Do centrum 900m.
Kontakt 500 126 782, 535 802 073
Szczegóły oferty
Cena za m²
6742 zł / m²Numer oferty
#1665Dostępne od
15 marca 2026Rynek
WtórnyPiętro
9Liczba pięter w budynku
10Liczba pokoi
3Rok budowy
1971Czynsz administracyjny (PLN)
550Rodzaj zabudowy
WieżowiecMateriał budynku
Wielka płytaOkna
Plastikowe (PCV)Ogrzewanie
MiejskieCertyfikat energetyczny
Nie posiadaWinda
TakStan wykończenia
Do remontuForma własności
Spółdzielcze wł. bez KWWyposażenie wnętrz
Oddzielna kuchnia
Udogodnienia i budynek
Winda
Balkon
Piwnica
Rzuty i Plany

Lokalizacja
Ładowanie mapy...
Dokładna lokalizacja jest przybliżona. Skontaktuj się z ogłoszeniodawcą aby poznać szczegóły.
Historia i statystyki
Wyświetlenia
9osób widziało to ogłoszenie Zapisania
0osób dodało do ulubionychWartość oferty
Na sprzedaż316 880 zł
Cena za metr 2
6742 zł / m2
Osoba prywatna
Marcin Kosowski Brak numeru telefonu
Zobacz wszystkie oferty
Ogłoszeniodawca zweryfikowany
Bezpieczna transakcja
Oferta zweryfikowana. Pamiętaj, aby nie przesyłać pieniędzy przed obejrzeniem nieruchomości.
Podobne oferty
Powiązane oferty z tej samej kategorii, które mogą Cię zainteresować
Sprzedam kawalerkę 18 m2 /b.dobra lokalizacja/
Kielce, Świętokrzyskie
18 m²
Powierzchnia
Cena całkowita
183 000 zł
Cena za m²
10 167 zł / m²
Rozkładowe, 3-pokojowe dla rodziny lub pod wynajem
Warszawa, Mazowieckie
57 m²
Powierzchnia
Cena całkowita
650 000 zł
Cena za m²
11 404 zł / m²
Sprzedam mieszkanie
Bolesławiec, Nieznane
68 m²
Powierzchnia
Cena całkowita
399 000 zł
Cena za m²
5868 zł / m²
Sprzedam mieszkanie Kłodzko
Kłodzko, Dolnośląskie
31 m²
Powierzchnia
Cena całkowita
160 000 zł
Cena za m²
5161 zł / m²
316 880 zł
6742 zł / m²
47 m²












