




+15Zobacz wszystkie
20 zdjęć
Mieszkanie 94m2, Wilanów
Klimczaka 22, Warszawa, Mazowieckie
Powierzchnia
94 m²Pokoje
4Piętro
3Typ oferty
SprzedażO nieruchomości
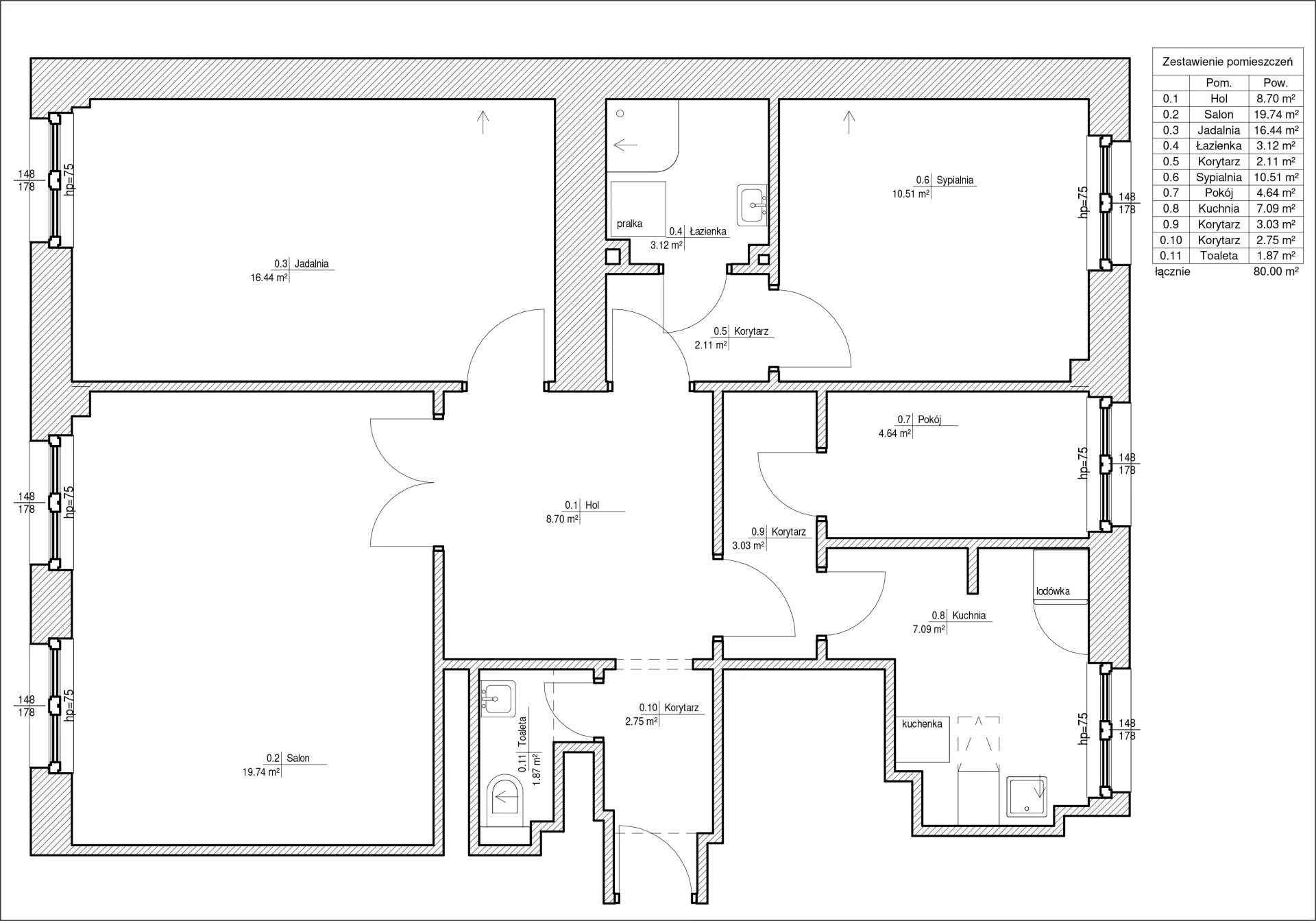
Na sprzedaż 3 pokojowe mieszkanie o powierzchni 94 m2 położone w Miasteczku Wilanów. Jest to atrakcyjna oferta dla osób poszukujących komfortowego mieszkania w świetnej lokalizacji. Mieszkanie o łącznej powierzchni 94 m2 składa się z: - salonu z aneksem kuchennym o powierzchni 41 m2 - sypialni o powierzchni 16 m2 - sypialni o powierzchni 17 m2 - garderoby o powierzchni 3,5 m2 - łazienki z prysznicem i wanną o powierzchni 6 m2 - toalety o powierzchni 1,6 m2 - pomieszczenia gospodarczego/pralni o powierzchni 1,6 m2 - holu o powierzchni 7 m2 - tarasu o powierzchni 13,5 m2 Apartament jest cichy i funkcjonalny. Został wykończony z użyciem dobrej jakości materiałów. Na podłodze położony jest parkiet. Wysokość pomieszczeń wynosi 290 cm. Mieszkanie jest dwustronne. Okna z sypialni wychodzą na ul. Klimczaka, a salon i druga sypialnia ma wyjście na taras z widokiem na zielony dziedziniec. W środkowej części mieszkania są garderoba, duża łazienka z wanną i prysznicem, pomieszczenie gospodarcze z pralką oraz toaleta. W budynku jest portiernia i ochrona 24/h. Teren jest zamknięty z zielonym i zadbanym dziedzincem wewnątrz, a do budynku prowadzą 2 wejścia. Do mieszkania przynależą 2 miejsca postojowe w garażu podziemnym na platformie, płatne dodatkowo 78 000 zł (za dwa miejsca ) Lokalizacja Budynek położony jest w centrum miasteczka Wilanów przy skrzyżowaniu ul. Klimczaka i Al. Rzeczypospolitej. W najbliższej okolicy znajdują się liczne punkty usługowe i handlowe (sklepy, restauracje piekarnie, kawiarnie) oraz przedszkola i szkoły podstawowe - publiczne oraz prywatne, w tym międzynarodowe (British Primary School, WBS - Polsko-Niemiecka Szkoła im. W. Brandta). Przy budynku są ścieżki rowerowe oraz tereny rekreacyjne z zielenią. Przystanek tramwajowy oraz autobusowy znajdują się 100 metrów od budynku Dojazd do Śródmieścia zajmuje ok 30 minut. Cena mieszkania 1 670 000 pln Cena 2 miejsc postojowych 78 000 pln Cena razem 1 748 000 pln ☎️ Tel/WhatsApp + 48 509 645 235 Email: roberturjasz@rrealestate.com
Szczegóły oferty
Cena za m²
17 766 zł / m²Numer oferty
#1466Winda
TakForma własności
spoldzielczeLokalizacja
Ładowanie mapy...
Dokładna lokalizacja jest przybliżona. Skontaktuj się z ogłoszeniodawcą aby poznać szczegóły.
Historia i statystyki
Wyświetlenia
3osób widziało to ogłoszenie Zapisania
0osób dodało do ulubionychWartość oferty
Na sprzedaż1 670 000 zł
Cena za metr 2
17 766 zł / m2
Biuro nieruchomości
RobertUrjaszR
Niedostępny
Opiekun oferty
RobertUrjasz
Zobacz oferty agencji
Ogłoszeniodawca zweryfikowany
Bezpieczna transakcja
Oferta zweryfikowana. Pamiętaj, aby nie przesyłać pieniędzy przed obejrzeniem nieruchomości.
Podobne oferty
Powiązane oferty z tej samej kategorii, które mogą Cię zainteresować
PIEKNE 4 POKOJE Z WIDOKIEM NA PARK I JEZIORO
WARSZAWA, Nieznane
103 m²
Powierzchnia
Cena całkowita
1 750 000 zł
Cena za m²
16 990 zł / m²
Wynajme mieszkanie Śródmieście 89m2 3-pokoje Balkon
Warszawa, Mazowieckie
89 m²
Powierzchnia
Cena całkowita
3500 zł
Cena za m²
39 zł / m²
109 m²
Powierzchnia
4 pok.
Liczba pokoi
Cena całkowita
7300 zł
Cena za m²
67 zł / m²
Do wynajęcia: świeżo wyremontowane, 80 m, centrum Warszawy IDEALNE BIURO!
Warszawa, Mazowieckie
80 m²
Powierzchnia
Cena całkowita
9000 zł
Cena za m²
113 zł / m²
1 670 000 zł
17 766 zł / m²
94 m²
4 pokoje


































