




+3Zobacz wszystkie
8 zdjęć
4pok 48m2 1p obok Politechniki Białostockiej
Bema 89C, Białystok, Podlaskie
Powierzchnia
48 m²Pokoje
6Piętro
3Typ oferty
SprzedażO nieruchomości
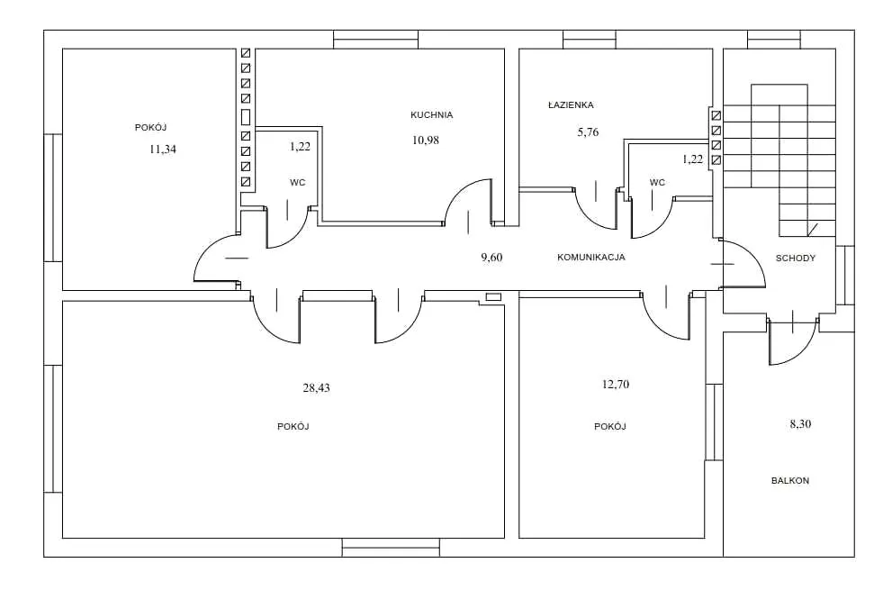
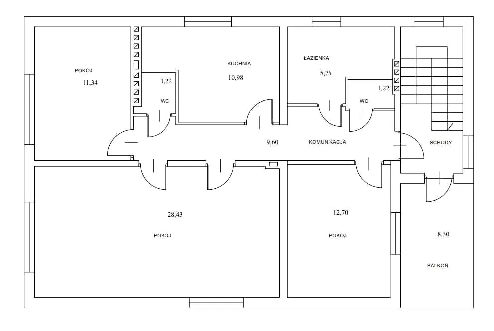
Na sprzedaż bardzo ładne i funkcjonalne mieszkanie o pow.48m2 zlokalizowane przy ul. Bema w Białymstoku po Gruntownym remoncie (wszystko starannie wykonane) Mieszkanie dla osób wymagających, poszukujących bardzo dobrej jakości. W ramach modernizacji zamontowano nowe centralne ogrzewanie, co zapewnia efektywne i ekonomiczne ogrzewanie pomieszczeń. OPIS NIERUCHOMOŚCI. -Ustawne 48m2 -Mieszkanie 4-pokojowe,salon z aneksem kuchennym,3 sypialnie przedpokój ,łazienka z WC -Aneks kuchenny wyposażony w sprzęty AGD: Piekarnik elektr. Płyta indukcyjna, Okap, Lodówka, Zmywarka -Łazienka z prysznicem i toaletą -Nowe instalacje elektryczne i hydrauliczne -Pierwsze piętro w czteropiętrowym bloku -Dodatkowo przynależny balkon oraz piwnica (2m2) -Fajna i stylowa aranżacja oraz wykończenie Dogodna lokalizacja centrum miasta sprawia, że mieszkanie jest atrakcyjne dla osób ceniących wygodę życia miejskiego. Parking przed blokiem (duża dostępność miejsc parkingowych) zabezpieczony szlabanem na pilot, dodaje wygody mieszkańcom. Nieruchomość jest wolna od wad prawnych czy zadłużeń obecnie nikt pod tym adresem nie jest zameldowany To miejsce stanowi doskonałą propozycję dla tych, którzy poszukują nowoczesnego i funkcjonalnego lokum. Mieszkanie jest wynajęte na 12 msc studentkom więc jest to oferta wyłącznie dla inwestorów. Pełna własność z Księgą Wieczystą Wydanie mieszkania bezpośrednio po sprzedaży
Szczegóły oferty
Cena za m²
11 563 zł / m²Numer oferty
#1592Winda
NieForma własności
spoldzielczeLokalizacja
Ładowanie mapy...
Dokładna lokalizacja jest przybliżona. Skontaktuj się z ogłoszeniodawcą aby poznać szczegóły.
Historia i statystyki
Wyświetlenia
3osób widziało to ogłoszenie Zapisania
0osób dodało do ulubionychWartość oferty
Na sprzedaż555 000 zł
Cena za metr 2
11 563 zł / m2
Bezpieczna transakcja
Oferta zweryfikowana. Pamiętaj, aby nie przesyłać pieniędzy przed obejrzeniem nieruchomości.
Podobne oferty
Powiązane oferty z tej samej kategorii, które mogą Cię zainteresować
Idealne 2-pok dla Rodziny lub Studentów
Białystok, Podlaskie
39 m²
Powierzchnia
Cena całkowita
485 000 zł
Cena za m²
12 436 zł / m²
2pok. 39m2 1p obok Politechniki Białostockiej
Białystok, Podlaskie
39 m²
Powierzchnia
Cena całkowita
2000 zł
Cena za m²
51 zł / m²
2pok 39m2 1p obok Politechniki Białostockiej
Białystok, Podlaskie
39 m²
Powierzchnia
Cena całkowita
2000 zł
Cena za m²
51 zł / m²
Piętro Domu Jednorodzinnego z oddzielną klatką schodową i mediami
Białystok, Podlaskie
81 m²
Powierzchnia
Cena całkowita
595 000 zł
Cena za m²
7346 zł / m²
555 000 zł
11 563 zł / m²
48 m²
6 pokoi














