




+4Zobacz wszystkie
9 zdjęć
Twoje miejsce w Szczecinie – cicha uliczka, duża działka, ogromny potencjał!
Krzywa 20, Szczecin, Zachodniopomorskie
Powierzchnia
110 m²Pokoje
6Liczba pięter
-Typ oferty
SprzedażO nieruchomości
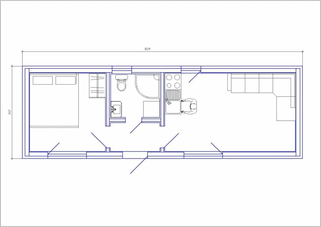
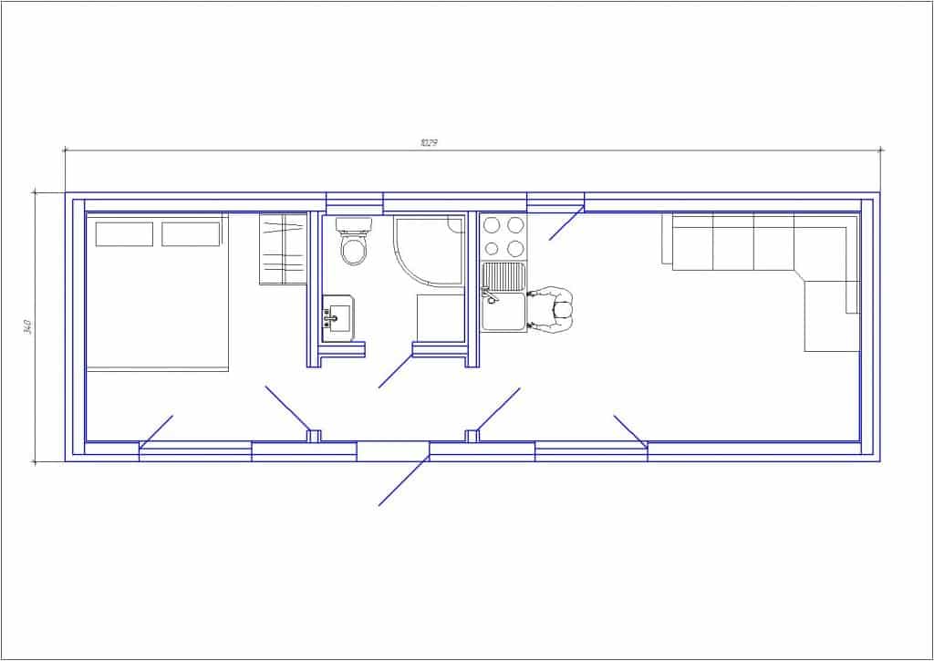
Na sprzedaż wyjątkowa nieruchomość położona w jednej z najbardziej kameralnych i spokojnych części Gumieniec – przy cichej, małej uliczce wśród niskiej zabudowy jednorodzinnej. Na dużej działce o powierzchni 848 m² znajduje się dom jednorodzinny przeznaczony do remontu, rozbudowy lub realizacji indywidualnego projektu. To idealna propozycja dla osób szukających miejsca na stworzenie wymarzonego domu w mieście, ale w zacisznej okolicy. Atuty nieruchomości: Duża działka – 848 m² Spokojna, zielona okolica Ogromny potencjał inwestycyjny Możliwość rozbudowy lub budowy nowego domu Lokalizacja: W bliskim sąsiedztwie znajdują się: szkoły i przedszkola, przychodnie i punkty usługowe, centra handlowe, doskonała komunikacja miejska – szybki dojazd do centrum Szczecina. To idealne miejsce dla rodzin, inwestorów lub osób marzących o własnym domu w prestiżowej lokalizacji.
Szczegóły oferty
Cena za m²
11 809 zł / m²Numer oferty
#1516Powierzchnia działki (m²)
848Garaż
w cenieLokalizacja
Ładowanie mapy...
Dokładna lokalizacja jest przybliżona. Skontaktuj się z ogłoszeniodawcą aby poznać szczegóły.
Historia i statystyki
Wyświetlenia
1osób widziało to ogłoszenie Zapisania
0osób dodało do ulubionychWartość oferty
Na sprzedaż1 299 000 zł
Cena za metr ²
11 809 zł / m²
Bezpieczna transakcja
Oferta zweryfikowana. Pamiętaj, aby nie przesyłać pieniędzy przed obejrzeniem nieruchomości.
Podobne oferty
Powiązane oferty z tej samej kategorii, które mogą Cię zainteresować
Dom bliźniak 5 pokoi z działkami w Mielenku
Mielenko, Zachodniopomorskie
250 m²
Powierzchnia
Cena całkowita
2 211 459 zł
Cena za m²
8846 zł / m²
Duży dom z potencjałem
Bukówko, Zachodniopomorskie
130 m²
Powierzchnia
Cena całkowita
479 000 zł
Cena za m²
3685 zł / m²
Wiejska posiadłość z lasem, rzeką i ogrodem
Świeszyno, Zachodniopomorskie
280 m²
Powierzchnia
Cena całkowita
1 200 000 zł
Cena za m²
4286 zł / m²
Dom modułowy Toscana 35 m2
Rzeszów, Podkarpackie
35 m²
Powierzchnia
Cena całkowita
118 040 zł
Cena za m²
3373 zł / m²
Cena
1 299 000 zł



















