




+11Zobacz wszystkie
16 zdjęć
M4 na Podlasiu tanio na inwestycję
ul. Ludowa 48, Wysokie Mazowieckie, Podlaskie
Powierzchnia
63 m²Pokoje
5Piętro
5Typ oferty
SprzedażO nieruchomości
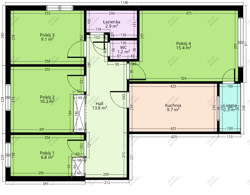
4-pokojowe mieszkanie w Wysokiem Mazowieckiem – ul. Ludowa 48 Przestronne i jasne mieszkanie w samym centrum Wysokiego Mazowieckiego, idealne dla rodziny lub inwestora. Lokal wyróżnia się trzema stronami świata, dużym poczuciem prywatności oraz funkcjonalnym układem pomieszczeń. Informacje o mieszkaniu: -Powierzchnia: 63,5 m² -Zabudowana loggia -Piwnica w cenie Układ pomieszczeń: -4 nieprzechodnie pokoje -Salon z wyjściem na zabudowaną loggię -Kuchnia z dużym oknem -Łazienka i osobne WC -Długi korytarz, który pozwala na wygodne rozmieszczenie szaf i przechowywanie Pokoje są nieprzechodnie, dzięki czemu każde pomieszczenie jest zupełnie prywatne z możliwością zamknięcia. Duże okna sprawiają, że wnętrza są bardzo jasne, a z okien rozciąga się przyjemny widok. To propozycja zarówno dla osób szukających mieszkania do remontu i własnej aranżacji, jak i dla inwestorów szukających nieruchomości z potencjałem. Możliwość zakupu na kredyt hipoteczny.
Szczegóły oferty
Cena za m²
4603 zł / m²Numer oferty
#1520Winda
NieForma własności
UdziałLokalizacja
Ładowanie mapy...
Dokładna lokalizacja jest przybliżona. Skontaktuj się z ogłoszeniodawcą aby poznać szczegóły.
Historia i statystyki
Wyświetlenia
0osób widziało to ogłoszenie Zapisania
0osób dodało do ulubionychWartość oferty
Na sprzedaż290 000 zł
Cena za metr ²
4603 zł / m²
Bezpieczna transakcja
Oferta zweryfikowana. Pamiętaj, aby nie przesyłać pieniędzy przed obejrzeniem nieruchomości.
Podobne oferty
Powiązane oferty z tej samej kategorii, które mogą Cię zainteresować
M4 na Podlasiu tanio pod inwestycję
Wysokie Mazowieckie, Podlaskie
63 m²
Powierzchnia
Cena całkowita
290 000 zł
Cena za m²
4603 zł / m²
Sprzedam 2-pokojowe mieszkanie w Siemiatyczach
Siemiatycze, Podlaskie
47 m²
Powierzchnia
Cena całkowita
270 000 zł
Cena za m²
5745 zł / m²
Piętro Domu Jednorodzinnego z oddzielną klatką schodową i mediami
Białystok, Podlaskie
81 m²
Powierzchnia
Cena całkowita
595 000 zł
Cena za m²
7346 zł / m²
Sprzedam bezpośrednio mieszkanie 2 pokojowe w Białymstoku
Białystok, Podlaskie
32 m²
Powierzchnia
Cena całkowita
289 000 zł
Cena za m²
9031 zł / m²
Cena
290 000 zł


























